Terrain R+8 à vendre

Galerie Images

Caractéristiques
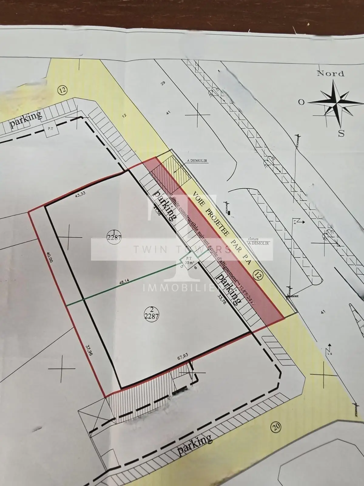
Property size icon Superficie: 2300 m2
Description
Venez découvrir ce magnifique terrain de 2300 m² dans un charmant lotissement  , situé en face  de la belle région de sahloul , 
constructible R+8 , emplacement stratégique sur une route principale , Possibilité de 12.000 M²  couvert .
Prix de m² 1900 dt .
Pour plus de détails ou pour une visite, veuillez nous contacter : Mlle Eslem 98 116 700   par téléphone ou sur WhatsApp.
E-mail : contact@twintowers-immo.tn // twintowersimmo@gmail.com
Notre agence Twin Towers vous souhaite la bienvenue !
Contact